Канадские дома

Каркасные дома

Технология каркасных домов

Строительство каркасных домов

Проекты каркасных домов

Дизайн домов

Фото строительства домов

Строительство усадьбы

Многоквартирный малоэтажный дом

Цены и комплектация

Каркасные дома по канадской технологии

 

 

ООО «Беркут»

Ваш дом - наша работа

e-mail:dearcon@list.ru

Каркасные дома тел.+7(926)917-54-30; +7(906)758-02-99

 

 

\\ Главная \ Многоквартирный малоэтажный дом

 

Многоквартирный малоэтажный дом


. На сегодняшний день многоквартирные малоэтажные дома приобретают все большую популярность у среднего классса. Сочетая в себе и квартиру и загородный дом, многоквартирные малоэтажные дома завоевывают к себе все больший интерес. В распоряжении владельца такого загородного коттеджа находится не только дом, но и прилегающая территория. Малоэтажным строительством считается жилая застройка до 4 этажей. В последнее время на государственном уровне со строительством малоэтажных жилых домов связывают надежды на решение жилищных проблем в России. ......
 



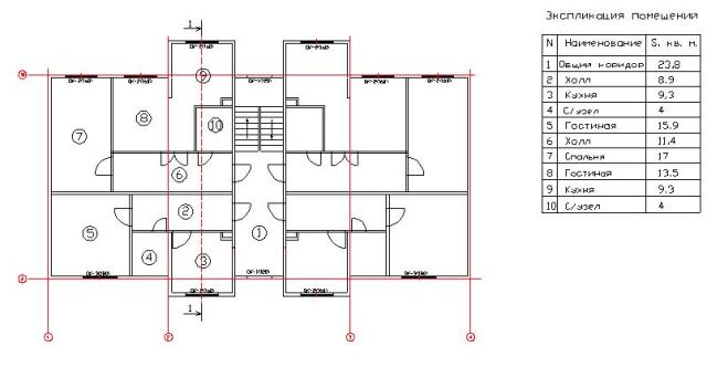
План первого этажа


План второго этажа

 
 
 

ООО"Беркут" Каркасно-щитовые дома по канадской технологии


Главная | Каркасно щитовые дома | Проекты домов | Связь

Строительство каркасных домов | Каркасные дома | Все для дачи | Сайдинг | Керамическая черепица | Гибкая черепица  | Мансардные окна | Водостоки

Copyright 2005-2007 © webdecon